-
1-5 personen
-
1 slaapkamer
-
1 badkamer
-
Huisdieren niet toegestaan
Dit appartement van 35 m² is ideaal gelegen en biedt u de mogelijkheid om af te koelen in het privézwembad van 13 x 8 m van de residentie en te genieten van de wijk Ponant, die erg populair is vanwege de rust en het groen.
De residentie ligt op slechts een steenworp afstand van alle voorzieningen (restaurants, eten, wasserette, markt op woensdag) en vrijetijdsactiviteiten (golf, tennis, boomklimmen, kanoën, watercentrum, enz.).
Het enige wat u hoeft te doen is uw voertuig achter te laten op de privéparkeerplaats van de residentie en de rijstroken te gebruiken die zijn gereserveerd voor fietsers of voetgangers langs het Lac du Ponant om naar het strand of het stadscentrum te gaan (5 minuten fietsen, 17 minuten lopen).
Dit appartement op het zuiden (met gemiddeld 310 dagen zon per jaar) beschikt over airconditioning, een terras van 7 m2 met een groot zonnescherm. Dit alles stelt u in staat om uw maaltijden te nuttigen en uitzicht te hebben op het zwembad zonder geconfronteerd te worden met de bewegingen van de gebruikers.
Op 20 minuten rijden kunt u een bezoek brengen aan Montpellier of genieten van de kreupelhout-, wandel- en mountainbikeroutes rond de Pic Saint-Loup.
Het appartement bestaat uit : een entree, een cabine met 2 stapelbedden, een badkamer met toilet, een lichte woonkamer met een ingerichte keuken, een tv-ruimte, een telewerkruimte met wifi en een slaapkamer met een bed van 140x200. Ideaal voor een stel of een gezin van 2 tot 3 kinderen.
De residentie ligt op slechts een steenworp afstand van alle voorzieningen (restaurants, eten, wasserette, markt op woensdag) en vrijetijdsactiviteiten (golf, tennis, boomklimmen, kanoën, watercentrum, enz.).
Het enige wat u hoeft te doen is uw voertuig achter te laten op de privéparkeerplaats van de residentie en de rijstroken te gebruiken die zijn gereserveerd voor fietsers of voetgangers langs het Lac du Ponant om naar het strand of het stadscentrum te gaan (5 minuten fietsen, 17 minuten lopen).
Dit appartement op het zuiden (met gemiddeld 310 dagen zon per jaar) beschikt over airconditioning, een terras van 7 m2 met een groot zonnescherm. Dit alles stelt u in staat om uw maaltijden te nuttigen en uitzicht te hebben op het zwembad zonder geconfronteerd te worden met de bewegingen van de gebruikers.
Op 20 minuten rijden kunt u een bezoek brengen aan Montpellier of genieten van de kreupelhout-, wandel- en mountainbikeroutes rond de Pic Saint-Loup.
Het appartement bestaat uit : een entree, een cabine met 2 stapelbedden, een badkamer met toilet, een lichte woonkamer met een ingerichte keuken, een tv-ruimte, een telewerkruimte met wifi en een slaapkamer met een bed van 140x200. Ideaal voor een stel of een gezin van 2 tot 3 kinderen.
Geverifieerde verhuurder
Ik bewoon dit appartement regelmatig, u vindt er al het comfort en mijn persoonlijke touch. De keuze van materialen, beddengoed, indeling, etc. zijn zorgvuldig gekozen.
Ik ben ervan overtuigd dat door het aanbieden van een kwaliteitswoning, de bewoners zich gerespecteerd zullen voelen en het plezier zullen hebben van een goed verblijf. Dit is de aandacht die ik probeer over te brengen op mijn gasten.
Ik ben ervan overtuigd dat door het aanbieden van een kwaliteitswoning, de bewoners zich gerespecteerd zullen voelen en het plezier zullen hebben van een goed verblijf. Dit is de aandacht die ik probeer over te brengen op mijn gasten.
Prijzen & reserveren
Selecteer je aankomst- en vertrekdatum op de kalender.
| ma | di | wo | do | vr | za | zo |
|---|---|---|---|---|---|---|
| 1 | 2 | 3 | 4 | 5 | ||
| 6 | 7 | 8 | 9 | 10 | 11 | 12 |
| 13 | 14 | 15 | 16 | 17 | 18 | 19 |
| 20 | 21 | 22 | 23 | 24 | 25 | 26 |
| 27 | 28 | 29 | 30 | |||
| ma | di | wo | do | vr | za | zo |
|---|---|---|---|---|---|---|
| 1 | 2 | 3 | ||||
| 4 | 5 | 6 | 7 | 8 | 9 | 10 |
| 11 | 12 | 13 | 14 | 15 | 16 | 17 |
| 18 | 19 | 20 | 21 | 22 | 23 | 24 |
| 25 | 26 | 27 | 28 | 29 | 30 | 31 |
| ma | di | wo | do | vr | za | zo |
|---|---|---|---|---|---|---|
| 1 | 2 | 3 | 4 | 5 | 6 | 7 |
| 8 | 9 | 10 | 11 | 12 | 13 | 14 |
| 15 | 16 | 17 | 18 | 19 | 20 | 21 |
| 22 | 23 | 24 | 25 | 26 | 27 | 28 |
| 29 | 30 | |||||
| ma | di | wo | do | vr | za | zo |
|---|---|---|---|---|---|---|
| 1 | 2 | 3 | 4 | 5 | ||
| 6 | 7 | 8 | 9 | 10 | 11 | 12 |
| 13 | 14 | 15 | 16 | 17 | 18 | 19 |
| 20 | 21 | 22 | 23 | 24 | 25 | 26 |
| 27 | 28 | 29 | 30 | 31 | ||
| ma | di | wo | do | vr | za | zo |
|---|---|---|---|---|---|---|
| 1 | 2 | |||||
| 3 | 4 | 5 | 6 | 7 | 8 | 9 |
| 10 | 11 | 12 | 13 | 14 | 15 | 16 |
| 17 | 18 | 19 | 20 | 21 | 22 | 23 |
| 24 | 25 | 26 | 27 | 28 | 29 | 30 |
| 31 |
| ma | di | wo | do | vr | za | zo |
|---|---|---|---|---|---|---|
| 1 | 2 | 3 | 4 | 5 | 6 | |
| 7 | 8 | 9 | 10 | 11 | 12 | 13 |
| 14 | 15 | 16 | 17 | 18 | 19 | 20 |
| 21 | 22 | 23 | 24 | 25 | 26 | 27 |
| 28 | 29 | 30 | ||||
| ma | di | wo | do | vr | za | zo |
|---|---|---|---|---|---|---|
| 1 | 2 | 3 | 4 | |||
| 5 | 6 | 7 | 8 | 9 | 10 | 11 |
| 12 | 13 | 14 | 15 | 16 | 17 | 18 |
| 19 | 20 | 21 | 22 | 23 | 24 | 25 |
| 26 | 27 | 28 | 29 | 30 | 31 | |
| ma | di | wo | do | vr | za | zo |
|---|---|---|---|---|---|---|
| 1 | ||||||
| 2 | 3 | 4 | 5 | 6 | 7 | 8 |
| 9 | 10 | 11 | 12 | 13 | 14 | 15 |
| 16 | 17 | 18 | 19 | 20 | 21 | 22 |
| 23 | 24 | 25 | 26 | 27 | 28 | 29 |
| 30 |
| ma | di | wo | do | vr | za | zo |
|---|---|---|---|---|---|---|
| 1 | 2 | 3 | 4 | 5 | 6 | |
| 7 | 8 | 9 | 10 | 11 | 12 | 13 |
| 14 | 15 | 16 | 17 | 18 | 19 | 20 |
| 21 | 22 | 23 | 24 | 25 | 26 | 27 |
| 28 | 29 | 30 | 31 | |||
| ma | di | wo | do | vr | za | zo |
|---|---|---|---|---|---|---|
| 1 | 2 | 3 | ||||
| 4 | 5 | 6 | 7 | 8 | 9 | 10 |
| 11 | 12 | 13 | 14 | 15 | 16 | 17 |
| 18 | 19 | 20 | 21 | 22 | 23 | 24 |
| 25 | 26 | 27 | 28 | 29 | 30 | 31 |
| ma | di | wo | do | vr | za | zo |
|---|---|---|---|---|---|---|
| 1 | 2 | 3 | 4 | 5 | 6 | 7 |
| 8 | 9 | 10 | 11 | 12 | 13 | 14 |
| 15 | 16 | 17 | 18 | 19 | 20 | 21 |
| 22 | 23 | 24 | 25 | 26 | 27 | 28 |
| ma | di | wo | do | vr | za | zo |
|---|---|---|---|---|---|---|
| 1 | 2 | 3 | 4 | 5 | 6 | 7 |
| 8 | 9 | 10 | 11 | 12 | 13 | 14 |
| 15 | 16 | 17 | 18 | 19 | 20 | 21 |
| 22 | 23 | 24 | 25 | 26 | 27 | 28 |
| 29 | 30 | 31 | ||||
| ma | di | wo | do | vr | za | zo |
|---|---|---|---|---|---|---|
| 1 | 2 | 3 | 4 | |||
| 5 | 6 | 7 | 8 | 9 | 10 | 11 |
| 12 | 13 | 14 | 15 | 16 | 17 | 18 |
| 19 | 20 | 21 | 22 | 23 | 24 | 25 |
| 26 | 27 | 28 | 29 | 30 | ||
| ma | di | wo | do | vr | za | zo |
|---|---|---|---|---|---|---|
| 1 | 2 | |||||
| 3 | 4 | 5 | 6 | 7 | 8 | 9 |
| 10 | 11 | 12 | 13 | 14 | 15 | 16 |
| 17 | 18 | 19 | 20 | 21 | 22 | 23 |
| 24 | 25 | 26 | 27 | 28 | 29 | 30 |
| 31 |
| ma | di | wo | do | vr | za | zo |
|---|---|---|---|---|---|---|
| 1 | 2 | 3 | 4 | 5 | 6 | |
| 7 | 8 | 9 | 10 | 11 | 12 | 13 |
| 14 | 15 | 16 | 17 | 18 | 19 | 20 |
| 21 | 22 | 23 | 24 | 25 | 26 | 27 |
| 28 | 29 | 30 | ||||
| ma | di | wo | do | vr | za | zo |
|---|---|---|---|---|---|---|
| 1 | 2 | 3 | 4 | |||
| 5 | 6 | 7 | 8 | 9 | 10 | 11 |
| 12 | 13 | 14 | 15 | 16 | 17 | 18 |
| 19 | 20 | 21 | 22 | 23 | 24 | 25 |
| 26 | 27 | 28 | 29 | 30 | 31 | |
| ma | di | wo | do | vr | za | zo |
|---|---|---|---|---|---|---|
| 1 | ||||||
| 2 | 3 | 4 | 5 | 6 | 7 | 8 |
| 9 | 10 | 11 | 12 | 13 | 14 | 15 |
| 16 | 17 | 18 | 19 | 20 | 21 | 22 |
| 23 | 24 | 25 | 26 | 27 | 28 | 29 |
| 30 | 31 |
| ma | di | wo | do | vr | za | zo |
|---|---|---|---|---|---|---|
| 1 | 2 | 3 | 4 | 5 | ||
| 6 | 7 | 8 | 9 | 10 | 11 | 12 |
| 13 | 14 | 15 | 16 | 17 | 18 | 19 |
| 20 | 21 | 22 | 23 | 24 | 25 | 26 |
| 27 | 28 | 29 | 30 | |||
| ma | di | wo | do | vr | za | zo |
|---|---|---|---|---|---|---|
| 1 | 2 | 3 | ||||
| 4 | 5 | 6 | 7 | 8 | 9 | 10 |
| 11 | 12 | 13 | 14 | 15 | 16 | 17 |
| 18 | 19 | 20 | 21 | 22 | 23 | 24 |
| 25 | 26 | 27 | 28 | 29 | 30 | 31 |
| ma | di | wo | do | vr | za | zo |
|---|---|---|---|---|---|---|
| 1 | 2 | 3 | 4 | 5 | 6 | 7 |
| 8 | 9 | 10 | 11 | 12 | 13 | 14 |
| 15 | 16 | 17 | 18 | 19 | 20 | 21 |
| 22 | 23 | 24 | 25 | 26 | 27 | 28 |
| 29 | 30 | |||||
| ma | di | wo | do | vr | za | zo |
|---|---|---|---|---|---|---|
| 1 | 2 | 3 | 4 | 5 | ||
| 6 | 7 | 8 | 9 | 10 | 11 | 12 |
| 13 | 14 | 15 | 16 | 17 | 18 | 19 |
| 20 | 21 | 22 | 23 | 24 | 25 | 26 |
| 27 | 28 | 29 | 30 | 31 | ||
| ma | di | wo | do | vr | za | zo |
|---|---|---|---|---|---|---|
| 1 | 2 | |||||
| 3 | 4 | 5 | 6 | 7 | 8 | 9 |
| 10 | 11 | 12 | 13 | 14 | 15 | 16 |
| 17 | 18 | 19 | 20 | 21 | 22 | 23 |
| 24 | 25 | 26 | 27 | 28 | 29 | 30 |
| 31 |
Wissen
-
1
Aankomst- / Vertrekdatum
- 1 Beschikbaar
- 1 Geen prijzen beschikbaar
- 1 Bezet
Toelichting op de prijzen & annuleringsvoorwaarden
De tarieven zijn concurrerend voor dit type appartement met zwembad en de markt voor de zeer populaire plaatsen van de wijk Ponant. Ze omvatten de verstrekking van beddengoed (lakens, kussens, bescherming). Handdoeken zijn niet inbegrepen.
De klant kan zijn reservering tot 8 dagen voor de aankomstdatum kosteloos annuleren. Na deze 8 dagen wordt bij annulering 25% van het in de reservering voorziene bedrag in rekening gebracht.
De klant betaalt 25% van het bedrag vooraf via bankoverschrijving + € 300 borg, die hij terugkrijgt als hij annuleert tijdens de gratis annuleringsperiode.
De waarborgsom wordt terugbetaald binnen 48 uur na de positieve inventaris. Schade of breuk wordt ingehouden op basis van de waarde van het onroerend goed.
De klant kan zijn reservering tot 8 dagen voor de aankomstdatum kosteloos annuleren. Na deze 8 dagen wordt bij annulering 25% van het in de reservering voorziene bedrag in rekening gebracht.
De klant betaalt 25% van het bedrag vooraf via bankoverschrijving + € 300 borg, die hij terugkrijgt als hij annuleert tijdens de gratis annuleringsperiode.
De waarborgsom wordt terugbetaald binnen 48 uur na de positieve inventaris. Schade of breuk wordt ingehouden op basis van de waarde van het onroerend goed.
Tarieven
Tarieven zijn per verblijf
van
za 27-dec-2025
tot
za 23-mei-2026
Minimaal verblijf
3 nachten
Week
€ 448,00
Midweek
€ 256,00
Nacht
€ 64,00
Weekend
€ 192,00
Korting
-
van
za 23-mei-2026
tot
za 04-jul-2026
Minimaal verblijf
3 nachten
Week
€ 602,00
Midweek
€ 344,00
Nacht
€ 86,00
Weekend
€ 258,00
Korting
-
van
za 04-jul-2026
tot
zo 23-aug-2026
Minimaal verblijf
3 nachten
Week
€ 749,00
Midweek
€ 428,00
Nacht
€ 107,00
Weekend
€ 321,00
Korting
-
van
zo 23-aug-2026
tot
za 19-sep-2026
Minimaal verblijf
3 nachten
Week
€ 602,00
Midweek
€ 344,00
Nacht
€ 86,00
Weekend
€ 258,00
Korting
-
van
za 19-sep-2026
tot
za 02-jan-2027
Minimaal verblijf
3 nachten
Week
€ 448,00
Midweek
€ 256,00
Nacht
€ 64,00
Weekend
€ 192,00
Korting
-
Extra's
Hier vind je de eventuele verplichte en optionele bijkomende kosten.
Badlinnen
€ 30,00
Per verblijf
Betalen bij boeking | optioneel
Bedlinnen
€ 70,00
Per verblijf
Betalen bij boeking | optioneel
Borgsom
€ 300,00
Per verblijf
Betalen bij boeking | verplicht
Eindschoonmaak
€ 0,00
Per verblijf
Gratis
Keukenlinnen
€ 10,00
Per verblijf
Betalen bij boeking | optioneel
Linnengoed
€ 30,00
Per verblijf
Betalen bij boeking | optioneel
Huisregels
-
- Huisdieren niet toegestaan
- Roken niet toegestaan
Locatie & tips
Tips van de verhuurder
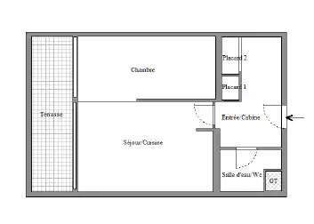
Plattegrond
Indeling
Woonkamer
3e verdieping
16 m2
Tegels
Airconditioning
Eethoek / Eettafel
Slaapkamer
3e verdieping
10 m2
Tegels
Dekens (1)
Kledingkast(en)
Badkamer
3e verdieping
3 m2
Toilet
Ligbad
Wastafel
Slaapplaatsen 2 bedden van 90
3e verdieping
3 m2
Terras
3e verdieping
7 m2
Fiets
Begane grond
10 m2
Zwembad
Soort: Openlucht zwembad / Inbouw zwembad
Verwarming: Niet verwarmd zwembad
Privacy: Gezamenlijk zwembad
Faciliteiten
Type accommodatie
- Appartement
Energielabel
- C
Woonoppervlakte
- 35 m2
Sport & recreatie
- Fietsen
- Golf
- Tennis
- Watersport
- Windsurfen
Populaire thema's
- Budget
- Stedentrip
- Cultuur & historie
- Luxe accommodatie
- Weekendje weg
- Zon, zee & strand
Verwarming
- Electrische verwarming
- Boiler
- Airconditioning
Internet, wifi, audio
- Televisie
- Internetaansluiting
Buitenvoorzieningen
- Balkon
- Buitenverlichting
- Garage
- Parasol(s)
- Parkeerplaats(en)
- Tuinstoel(en) (4)
- Tuintafel(s) (2)
Linnengoed
- Bedlinnen
- Keukenlinnen
- Linnen voor kinderbed
Faciliteiten
- Hal
- Beveiligingsinstallatie
- Accommodatie op verdieping:
Kinderen
- Commode
Anderen bekeken ook:
Nachtprijs v.a.
Per week (7 nachten): € 840,-
Nachtprijs v.a.
€ 120,-
Villa La Gineroise
Nachtprijs v.a.
Per week (7 nachten): € 931,-
Nachtprijs v.a.
€ 133,-
Villa la Petite Différence
8,0
Nachtprijs v.a.
Per week (7 nachten): € 880,-
Nachtprijs v.a.
€ 126,-
