-
1-4 personen
-
1 slaapkamer
-
1 badkamer
-
Huisdieren in overleg
De gîte Tournesol (zonnebloem) is geschikt voor max 2 volwassenen . De Tournesol is van alle gemakken voorzien.
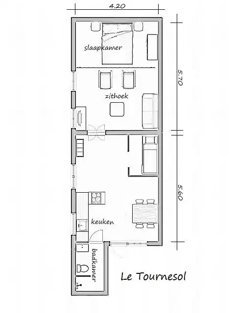
De indeling bestaat uit een eetkamer met open keuken en in een hoek een aparte nis met een kast voor de kleren. Verder is er een zitkamer met een 2- persoonsbank, 2 luie stoelen en een tv met een chromecast.
Tenslotte een slaapgedeelte met een tweepersoonbed.
Naast de entrée bevindt zich de natte cel met daarin een inloopdouche, wastafel en toilet.
Voor de ingang van de Tournesol is er een klein zitje en op 10 meter afstand bevindt zich een zonnig terras.
Er is een houten tuinameublement en 2 parasols.
Op het terrein vindt u een zwembad van 6 x 13 meter en er zijn diverse zitjes in schaduw of zon.
Het terrein is in totaal 3 ha groot en er zijn 6 kampeerplekken en en nog 2 andere gites.
Het domaine is alleen voor volwassenen waardoor het er heerlijk rustig is.
De omgeving leent zich heel goed voor wandelingen en (electrische) fietstochten. Beschreven tochten vanaf de Cote de Fumel zijn beschikbaar.
Twee keer per week kan er met elkaar gegeten worden, dit leidt vaak tot veel gezelligheid en leuke ontmoetingen.
De indeling bestaat uit een eetkamer met open keuken en in een hoek een aparte nis met een kast voor de kleren. Verder is er een zitkamer met een 2- persoonsbank, 2 luie stoelen en een tv met een chromecast.
Tenslotte een slaapgedeelte met een tweepersoonbed.
Naast de entrée bevindt zich de natte cel met daarin een inloopdouche, wastafel en toilet.
Voor de ingang van de Tournesol is er een klein zitje en op 10 meter afstand bevindt zich een zonnig terras.
Er is een houten tuinameublement en 2 parasols.
Op het terrein vindt u een zwembad van 6 x 13 meter en er zijn diverse zitjes in schaduw of zon.
Het terrein is in totaal 3 ha groot en er zijn 6 kampeerplekken en en nog 2 andere gites.
Het domaine is alleen voor volwassenen waardoor het er heerlijk rustig is.
De omgeving leent zich heel goed voor wandelingen en (electrische) fietstochten. Beschreven tochten vanaf de Cote de Fumel zijn beschikbaar.
Twee keer per week kan er met elkaar gegeten worden, dit leidt vaak tot veel gezelligheid en leuke ontmoetingen.
Bekijk alle reviews
Geverifieerde verhuurder
Wij zijn Rien Olijve en Saskia ter Heege. Onze lang gekoesterde wens is in vervulling gegaan. Hier op deze prachtige plek in Valeilles voelden we ons meteen thuis. De rust, de ruimte en de natuur, de heerlijke wandelingen en fietstochten die je kan maken vanaf het huis maken deze plek favoriet.Het domaine sluit goed aan bij alles wat we leuk vinden. Gasten een fijne vakantie bezorgen, lekker koken en dat in een prachtige omgeving met een heerlijk klimaat!
Prijzen & reserveren
Selecteer je aankomst- en vertrekdatum op de kalender.
| ma | di | wo | do | vr | za | zo |
|---|---|---|---|---|---|---|
| 1 | 2 | 3 | ||||
| 4 | 5 | 6 | 7 | 8 | 9 | 10 |
| 11 | 12 | 13 | 14 | 15 | 16 | 17 |
| 18 | 19 | 20 | 21 | 22 | 23 | 24 |
| 25 | 26 | 27 | 28 | 29 | 30 | 31 |
| ma | di | wo | do | vr | za | zo |
|---|---|---|---|---|---|---|
| 1 | 2 | 3 | 4 | 5 | 6 | 7 |
| 8 | 9 | 10 | 11 | 12 | 13 | 14 |
| 15 | 16 | 17 | 18 | 19 | 20 | 21 |
| 22 | 23 | 24 | 25 | 26 | 27 | 28 |
| 29 | 30 | |||||
| ma | di | wo | do | vr | za | zo |
|---|---|---|---|---|---|---|
| 1 | 2 | 3 | 4 | 5 | ||
| 6 | 7 | 8 | 9 | 10 | 11 | 12 |
| 13 | 14 | 15 | 16 | 17 | 18 | 19 |
| 20 | 21 | 22 | 23 | 24 | 25 | 26 |
| 27 | 28 | 29 | 30 | 31 | ||
| ma | di | wo | do | vr | za | zo |
|---|---|---|---|---|---|---|
| 1 | 2 | |||||
| 3 | 4 | 5 | 6 | 7 | 8 | 9 |
| 10 | 11 | 12 | 13 | 14 | 15 | 16 |
| 17 | 18 | 19 | 20 | 21 | 22 | 23 |
| 24 | 25 | 26 | 27 | 28 | 29 | 30 |
| 31 |
| ma | di | wo | do | vr | za | zo |
|---|---|---|---|---|---|---|
| 1 | 2 | 3 | 4 | 5 | 6 | |
| 7 | 8 | 9 | 10 | 11 | 12 | 13 |
| 14 | 15 | 16 | 17 | 18 | 19 | 20 |
| 21 | 22 | 23 | 24 | 25 | 26 | 27 |
| 28 | 29 | 30 | ||||
| ma | di | wo | do | vr | za | zo |
|---|---|---|---|---|---|---|
| 1 | 2 | 3 | 4 | |||
| 5 | 6 | 7 | 8 | 9 | 10 | 11 |
| 12 | 13 | 14 | 15 | 16 | 17 | 18 |
| 19 | 20 | 21 | 22 | 23 | 24 | 25 |
| 26 | 27 | 28 | 29 | 30 | 31 | |
| ma | di | wo | do | vr | za | zo |
|---|---|---|---|---|---|---|
| 1 | ||||||
| 2 | 3 | 4 | 5 | 6 | 7 | 8 |
| 9 | 10 | 11 | 12 | 13 | 14 | 15 |
| 16 | 17 | 18 | 19 | 20 | 21 | 22 |
| 23 | 24 | 25 | 26 | 27 | 28 | 29 |
| 30 |
| ma | di | wo | do | vr | za | zo |
|---|---|---|---|---|---|---|
| 1 | 2 | 3 | 4 | 5 | 6 | |
| 7 | 8 | 9 | 10 | 11 | 12 | 13 |
| 14 | 15 | 16 | 17 | 18 | 19 | 20 |
| 21 | 22 | 23 | 24 | 25 | 26 | 27 |
| 28 | 29 | 30 | 31 | |||
| ma | di | wo | do | vr | za | zo |
|---|---|---|---|---|---|---|
| 1 | 2 | 3 | ||||
| 4 | 5 | 6 | 7 | 8 | 9 | 10 |
| 11 | 12 | 13 | 14 | 15 | 16 | 17 |
| 18 | 19 | 20 | 21 | 22 | 23 | 24 |
| 25 | 26 | 27 | 28 | 29 | 30 | 31 |
| ma | di | wo | do | vr | za | zo |
|---|---|---|---|---|---|---|
| 1 | 2 | 3 | 4 | 5 | 6 | 7 |
| 8 | 9 | 10 | 11 | 12 | 13 | 14 |
| 15 | 16 | 17 | 18 | 19 | 20 | 21 |
| 22 | 23 | 24 | 25 | 26 | 27 | 28 |
| ma | di | wo | do | vr | za | zo |
|---|---|---|---|---|---|---|
| 1 | 2 | 3 | 4 | 5 | 6 | 7 |
| 8 | 9 | 10 | 11 | 12 | 13 | 14 |
| 15 | 16 | 17 | 18 | 19 | 20 | 21 |
| 22 | 23 | 24 | 25 | 26 | 27 | 28 |
| 29 | 30 | 31 | ||||
| ma | di | wo | do | vr | za | zo |
|---|---|---|---|---|---|---|
| 1 | 2 | 3 | 4 | |||
| 5 | 6 | 7 | 8 | 9 | 10 | 11 |
| 12 | 13 | 14 | 15 | 16 | 17 | 18 |
| 19 | 20 | 21 | 22 | 23 | 24 | 25 |
| 26 | 27 | 28 | 29 | 30 | ||
| ma | di | wo | do | vr | za | zo |
|---|---|---|---|---|---|---|
| 1 | 2 | |||||
| 3 | 4 | 5 | 6 | 7 | 8 | 9 |
| 10 | 11 | 12 | 13 | 14 | 15 | 16 |
| 17 | 18 | 19 | 20 | 21 | 22 | 23 |
| 24 | 25 | 26 | 27 | 28 | 29 | 30 |
| 31 |
| ma | di | wo | do | vr | za | zo |
|---|---|---|---|---|---|---|
| 1 | 2 | 3 | 4 | 5 | 6 | |
| 7 | 8 | 9 | 10 | 11 | 12 | 13 |
| 14 | 15 | 16 | 17 | 18 | 19 | 20 |
| 21 | 22 | 23 | 24 | 25 | 26 | 27 |
| 28 | 29 | 30 | ||||
| ma | di | wo | do | vr | za | zo |
|---|---|---|---|---|---|---|
| 1 | 2 | 3 | 4 | |||
| 5 | 6 | 7 | 8 | 9 | 10 | 11 |
| 12 | 13 | 14 | 15 | 16 | 17 | 18 |
| 19 | 20 | 21 | 22 | 23 | 24 | 25 |
| 26 | 27 | 28 | 29 | 30 | 31 | |
| ma | di | wo | do | vr | za | zo |
|---|---|---|---|---|---|---|
| 1 | ||||||
| 2 | 3 | 4 | 5 | 6 | 7 | 8 |
| 9 | 10 | 11 | 12 | 13 | 14 | 15 |
| 16 | 17 | 18 | 19 | 20 | 21 | 22 |
| 23 | 24 | 25 | 26 | 27 | 28 | 29 |
| 30 | 31 |
| ma | di | wo | do | vr | za | zo |
|---|---|---|---|---|---|---|
| 1 | 2 | 3 | 4 | 5 | ||
| 6 | 7 | 8 | 9 | 10 | 11 | 12 |
| 13 | 14 | 15 | 16 | 17 | 18 | 19 |
| 20 | 21 | 22 | 23 | 24 | 25 | 26 |
| 27 | 28 | 29 | 30 | |||
| ma | di | wo | do | vr | za | zo |
|---|---|---|---|---|---|---|
| 1 | 2 | 3 | ||||
| 4 | 5 | 6 | 7 | 8 | 9 | 10 |
| 11 | 12 | 13 | 14 | 15 | 16 | 17 |
| 18 | 19 | 20 | 21 | 22 | 23 | 24 |
| 25 | 26 | 27 | 28 | 29 | 30 | 31 |
| ma | di | wo | do | vr | za | zo |
|---|---|---|---|---|---|---|
| 1 | 2 | 3 | 4 | 5 | 6 | 7 |
| 8 | 9 | 10 | 11 | 12 | 13 | 14 |
| 15 | 16 | 17 | 18 | 19 | 20 | 21 |
| 22 | 23 | 24 | 25 | 26 | 27 | 28 |
| 29 | 30 | |||||
| ma | di | wo | do | vr | za | zo |
|---|---|---|---|---|---|---|
| 1 | 2 | 3 | 4 | 5 | ||
| 6 | 7 | 8 | 9 | 10 | 11 | 12 |
| 13 | 14 | 15 | 16 | 17 | 18 | 19 |
| 20 | 21 | 22 | 23 | 24 | 25 | 26 |
| 27 | 28 | 29 | 30 | 31 | ||
| ma | di | wo | do | vr | za | zo |
|---|---|---|---|---|---|---|
| 1 | 2 | |||||
| 3 | 4 | 5 | 6 | 7 | 8 | 9 |
| 10 | 11 | 12 | 13 | 14 | 15 | 16 |
| 17 | 18 | 19 | 20 | 21 | 22 | 23 |
| 24 | 25 | 26 | 27 | 28 | 29 | 30 |
| 31 |
| ma | di | wo | do | vr | za | zo |
|---|---|---|---|---|---|---|
| 1 | 2 | 3 | 4 | 5 | 6 | |
| 7 | 8 | 9 | 10 | 11 | 12 | 13 |
| 14 | 15 | 16 | 17 | 18 | 19 | 20 |
| 21 | 22 | 23 | 24 | 25 | 26 | 27 |
| 28 | 29 | |||||
Wissen
-
1
Aankomst- / Vertrekdatum
- 1 Beschikbaar
- 1 Geen prijzen beschikbaar
- 1 Bezet
Toelichting op de prijzen & annuleringsvoorwaarden
De prijzen zijn inclusief handdoeken en opgemaakte bedden.
Tarieven
Tarieven zijn per verblijf
van
vr 22-aug-2025
tot
ma 01-jun-2026
Minimaal verblijf
5 nachten
Week
€ 535,00
Midweek
-
Nacht
€ 76,00
Weekend
-
Korting
-
van
ma 01-jun-2026
tot
za 27-jun-2026
Minimaal verblijf
5 nachten
Week
€ 600,00
Midweek
-
Nacht
€ 86,00
Weekend
-
Korting
-
van
za 27-jun-2026
tot
zo 16-aug-2026
Minimaal verblijf
5 nachten
Week
€ 798,00
Midweek
-
Nacht
€ 114,00
Weekend
-
Korting
-
Extra's
Hier vind je de eventuele verplichte en optionele bijkomende kosten.
Eindschoonmaak
€ 50,00
Per verblijf
Ter plaatse betalen | verplicht
Huisregels
-
- Huisdieren in overleg
- Roken niet toegestaan
Locatie & tips
Plattegrond
Indeling
Woonkamer
Begane grond
47 m2
Vloerdelen
Ventilator
Eethoek / Eettafel
Badkamer
Begane grond
5 m2
Toilet
Douche (1)
Wastafel (1)
Keuken
Soort: Open
Fornuis: Gas (4 Kookzones/branders)
Bestek & servies
Zwembad
Soort: Openlucht zwembad / Inbouw zwembad
Verwarming: Niet verwarmd zwembad
Privacy: Gezamenlijk zwembad
Faciliteiten
Type accommodatie
- Vakantiehuis
Woonoppervlakte
- 47 m2
Sport & recreatie
- Fietsen
- Jeu de boules
- Tennis
- Wandelen
- Zwemmen
Populaire thema's
- Cultuur & historie
- In de natuur
- Weekendje weg
- Adults only
Verwarming
- Electrische verwarming
- Houtkachel
- Boiler
- Airconditioning
Internet, wifi, audio
- Televisie
- Radio
- Wifi
Buitenvoorzieningen
- Buitenverlichting
- Ligstoel(en) (2)
- Parasol(s)
- Parkeerplaats(en) (2)
- Tafeltennistafel
- Terras (1)
- Tuin
- Tuinstoel(en) (4)
- Tuintafel(s) (1)
- Jeu de Boulesbaan
- Hangmat
Privacy
- Beheerder op terrein
Faciliteiten
- Strijkplank / strijkijzer
- Stofzuiger
- Wasdroger
- Wasmachine
- Berging
Linnengoed
- Bedlinnen
- Handdoeken (8)
- Keukenlinnen
Games & entertainment
- (Bord)spellen
- Tafeltennistafel
Andere vakantiehuizen van deze verhuurder
Nachtprijs v.a.
Per week (7 nachten): € 420,-
Nachtprijs v.a.
€ 60,-
Jardinerie Cote de Fumel
9,6
Nachtprijs v.a.
Per week (7 nachten): € 468,-
Nachtprijs v.a.
€ 67,-
