Chalet


Indeling:
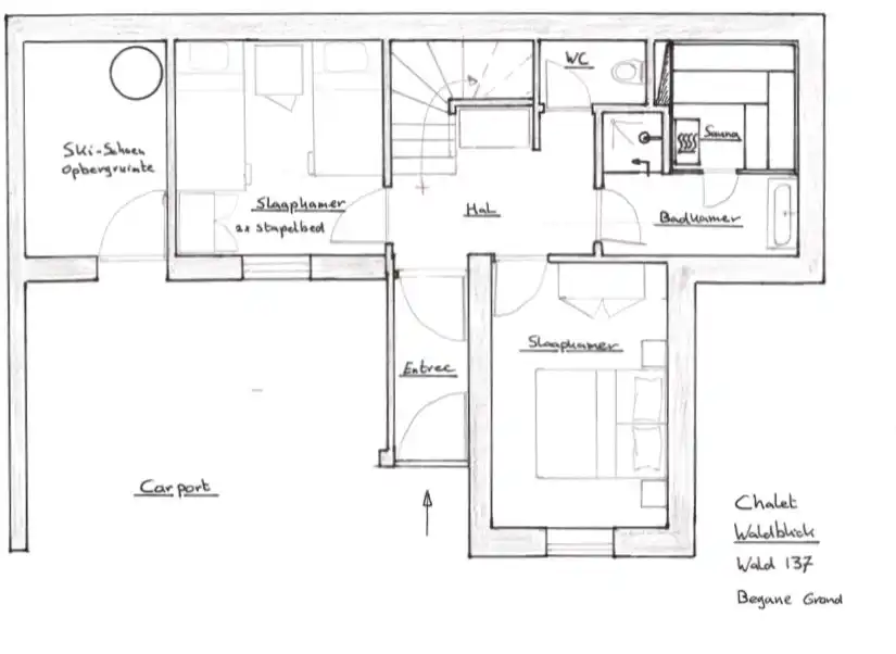
Begane grond:
Ingang en hal met ruime schoenenkast, slaapkamer met 2 stapelbedden, slaapkamer met 2 persoonsbed, badkamer met douche en SAUNA en een apart toilet.

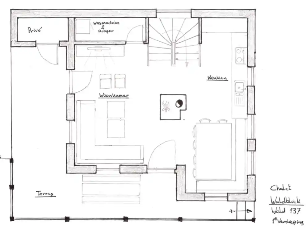
De 1e verdieping:
Een royale woonkamer en gezellige zithoek (ruime hoekbank en stoelen) voor 12 personen rond een sfeervolle authentieke 'Kachelofen'. Het gratis te gebruiken open haadhout ligt voor u klaar buiten het Chalet! Openslaande deuren geven toegang tot het ruime balkon op het zuiden en het iets lagere terras, beide met een fantastisch uitzicht op de 'Hohe Tauern'.
De moderne open keuken nodigt uit om samen te koken. In combinatie met een grote eethoek staat deze garant voor heerlijk gezamenlijk eten, borrelen of/en het spelen van spelletjes.
Ook aanwezig: satelliet- / kabel-tv (NL-zenders), 'home cinema-systeem', gratis WIFI internet, games c. q. boekenkast, wasmachine en droger strijkplank en strijkbout.

2e verdieping:
Aan de overloop liggen 3 slaapkamers, waarvan 2 met apart balkon en 2 persoonsbed en 1 slaapkamer met een 2 persoonsbed die naar behoeft ook omgezet kan worden naar 2 aparte 1 persoonbedden.
De badkamer is uitgerust met bad en aparte douche en toilet.

Voor het chalet (BG):
In een aparte ruimte bevindt zich een verwarmde skiopslag (met extra opslag tuinstoelen). Onder het balkon: gedeeltelijk overdekte parkeerplaats voor 2 auto's.

Inbegrepen:
Gratis gebruik van het 'Kristallbad' (zwembad)

Jouw verhuurder, Stefan & Angela

Krijgt gemiddeld een 8,7
Geverifieerde verhuurder
Reageert gemiddeld binnen 1 dag
Wij, Gert & Marlou en Stefan & Angela, zijn al sinds 2003 de trotse 1e eigenaren van ons mooie familiechalet. Wij waren gelijk ‘verkocht’, want het Chalet bood ons de mogelijkheid om met onze beide gezinnen te skiën, wandelen of te fietsen.
Nu, is het inmiddels een plek waar onze kinderen met hun vrienden en familie regelmatig van een heerlijke actieve, maar ook een relaxte vakantie genieten.
Voor praktische informatie: 1 belletje of mailtje is genoeg!

Prijzen & reserveren

Selecteer je aankomst- en vertrekdatum op de kalender.
Selecteer je vertrekdatum.
 Minimaal verblijf  nachten.
Nu nog géén betaling nodig, pas als de verhuurder je reservering accepteert.
Wissen
  • 1 Aankomst- / Vertrekdatum
  • 1 Beschikbaar
  • 1 Geen prijzen beschikbaar
  • 1 Bezet
  • 1 Korting

Tarieven

Tarieven zijn per verblijf

van
za 29-nov-2025
tot
za 20-dec-2025
Minimaal verblijf 7 nachten
Week € 2095,00
Midweek -
Nacht € 299,00
Weekend -
van
za 20-dec-2025
tot
za 27-dec-2025
Minimaal verblijf 7 nachten
Week € 4779,00
Midweek -
Nacht € 683,00
Weekend -
van
za 27-dec-2025
tot
za 03-jan-2026
Minimaal verblijf 7 nachten
Week € 5024,00
Midweek -
Nacht € 718,00
Weekend -
van
za 03-jan-2026
tot
za 10-jan-2026
Minimaal verblijf 7 nachten
Week € 2781,00
Midweek -
Nacht € 397,00
Weekend -
van
za 10-jan-2026
tot
za 17-jan-2026
Minimaal verblijf 7 nachten
Week € 1990,00
Midweek -
Nacht € 284,00
Weekend -
van
za 17-jan-2026
tot
za 31-jan-2026
Minimaal verblijf 7 nachten
Week € 2095,00
Midweek -
Nacht € 299,00
Weekend -
van
za 31-jan-2026
tot
za 14-feb-2026
Minimaal verblijf 7 nachten
Week € 3489,00
Midweek -
Nacht € 299,00
Weekend -
van
za 14-feb-2026
tot
za 28-feb-2026
Minimaal verblijf 7 nachten
Week € 5024,00
Midweek -
Nacht € 718,00
Weekend -
van
za 28-feb-2026
tot
za 07-mrt-2026
Minimaal verblijf 7 nachten
Week € 2927,00
Midweek -
Nacht € 418,00
Weekend -

Extra's

Hier vind je de eventuele verplichte en optionele bijkomende kosten.

Bedlinnen
€ 23,50
Per persoon
Betalen bij boeking | verplicht
Overige kosten
€ 50,00
Per verblijf
Betalen bij boeking | verplicht
Schoonmaak
€ 235,00
Per verblijf
Betalen bij boeking | verplicht
Servicekosten
€ 40,00
Per verblijf
Betalen bij boeking | verplicht
Toeristenbelasting 3 t/m 14 jaar
€ 0,10
Per persoon per nacht
Betalen bij boeking | verplicht
Toeristenbelasting vanaf 15 jaar
€ 3,10
Per persoon per nacht
Betalen bij boeking | verplicht

Huisregels

  • Huisdieren niet toegestaan
  • Roken niet toegestaan

Locatie & tips

Plattegrond


Indeling

Woonkamer
1e verdieping

Parket

Eethoek / Eettafel

Eetkamerstoelen (12)

Slaapkamer 1
Souterrain
11 m2

Bed: 2-persoons 200 x 180 cm

Parket

Dekbedden (2)

Slaapkamer 2
Souterrain
10 m2

Bed: Stapelbed 200 x 90 cm

Bed: Stapelbed 200 x 90 cm

Parket

Slaapkamer 3
2e verdieping
10 m2

Bed: 1-persoons 200 x 90 cm

Bed: 1-persoons 200 x 90 cm

Parket

Slaapkamer 4
2e verdieping
11 m2

Bed: 2-persoons 200 x 180 cm

Parket

Dekbedden (2)

Slaapkamer 5
2e verdieping
15 m2

Bed: 2-persoons 200 x 180 cm

Parket

Dekbedden (2)

Badkamer 1
2e verdieping
9 m2

Toilet

Douche

Ligbad

Badkamer 2
Souterrain
15 m2

Douche

Wastafel

Föhn

Keuken

Soort: Open

Fornuis: Inductie (4 Kookzones/branders)

Afzuigkap


Faciliteiten

Type accommodatie

  • Chalet

Woonoppervlakte

  • 135 m

Kinderen

  • Kinderbed
  • Kinderstoel

Sport & recreatie

  • Bergsport
  • Fietsen
  • Golf
  • Mountainbiken
  • Wandelen

Populaire thema's

  • Kindvriendelijk
  • Luxe accommodatie
  • Groepsaccommodatie

Wellness

  • Sauna

Verwarming

  • Electrische verwarming
  • Vloerverwarming
  • Houtkachel
  • Boiler

Internet, wifi, audio

  • Satellietontvanger
  • Televisie
  • Home cinema set
  • Radio
  • Cd-speler
  • Dvd-speler
  • Wifi
  • Nederlandstalige zenders
  • Internetaansluiting

Buitenvoorzieningen

  • Balkon
  • Buitenverlichting
  • Carport
  • Parasol(s)
  • Parkeerplaats(en) (2)
  • Terras
  • Tuinstoel(en) (12)
  • Tuintafel(s) (3)
  • Schuur
  • Asbak(ken)

Privacy

  • Beheerder op terrein
  • Volledige privacy
  • Vrijstaande woning

Faciliteiten

  • Strijkplank / strijkijzer
  • Stofzuiger
  • Wasdroger
  • Wasmachine
  • Hal
  • Berging
  • Hypoallergeen
  • Bijkeuken / wasruimte
  • Apart toilet (2)

Linnengoed

  • Bedlinnen

Games & entertainment

  • (Bord)spellen
  • (Strip)boeken


Vergunningsnummer:
50626-001137-2020
€ 418,-
per nacht vanaf (o.b.v. 1 week)
€ 418,-
per nacht vanaf (o.b.v. 1 week)
Aankomst
-
Vertrek Selecteer
  • Géén boekingskosten
  • Je boekt direct bij de verhuurder
  • Trustpilot 15.000+ reviews: 4,8

Andere vakantiehuizen van deze verhuurder

Porto Letizia - Appartement P6

8,7
Nachtprijs v.a. Per week (7 nachten): € 924,- Nachtprijs v.a. € 132,-